Commercial Dumpster Refuse Service

We offer a variety of sizes including 4 yard, 6 yard, 8 yard and open-top roll-off containers for trash and recycling. Every person, entity, or corporation receiving either water service or wastewater (sewer) service from the City shall utilize the solid waste collection services of the City except for hazardous waste, infectious waste, or controlled waste. The State of Texas Health and Safety Code requires putrescible (food) waste collection at least once per week.

The frequency of trash collection has a minimum of one time per week with up to six times a week service, Monday through Saturday. No Sundays. Bag your trash: Bagging trash helps to prevent litter during collection and transport, protects your container, and reduces blowing litter in your area.

How to Sign up for Commercial Dumpster Service

This service provides containerized municipal solid waste collection service to every person, entity, or corporation, which do not receive service from the residential collection division or commercial cart service. To start commercial dumpster services please call:

1. Customer Service at City Hall to activate utility account (water service) (940) 668-4500, or at 200 S. Rusk, Gainesville, TX 76240, Monday – Friday 8 AM – 5 PM

2. General Services Department, Solid Waste Division to select container size and service, at (940) 668-4551 or at 601 N. I-35, Gainesville, TX 76240, Monday – Friday 7:30 AM – 4 PM

Commercial Containers

Commercial customers are responsible for ensuring proper disposal of all refuse. Avoid collection delays and additional fees. Bulk waste must not be set outside the container or over flowing. Containers lids must be level and cardboard must be broken down.

Types of Containers – Front Load Containers

4 yd. Dumpster

002.JPG

6 yd. Dumpster

003.JPG

8 yd. Dumpster

004.JPG

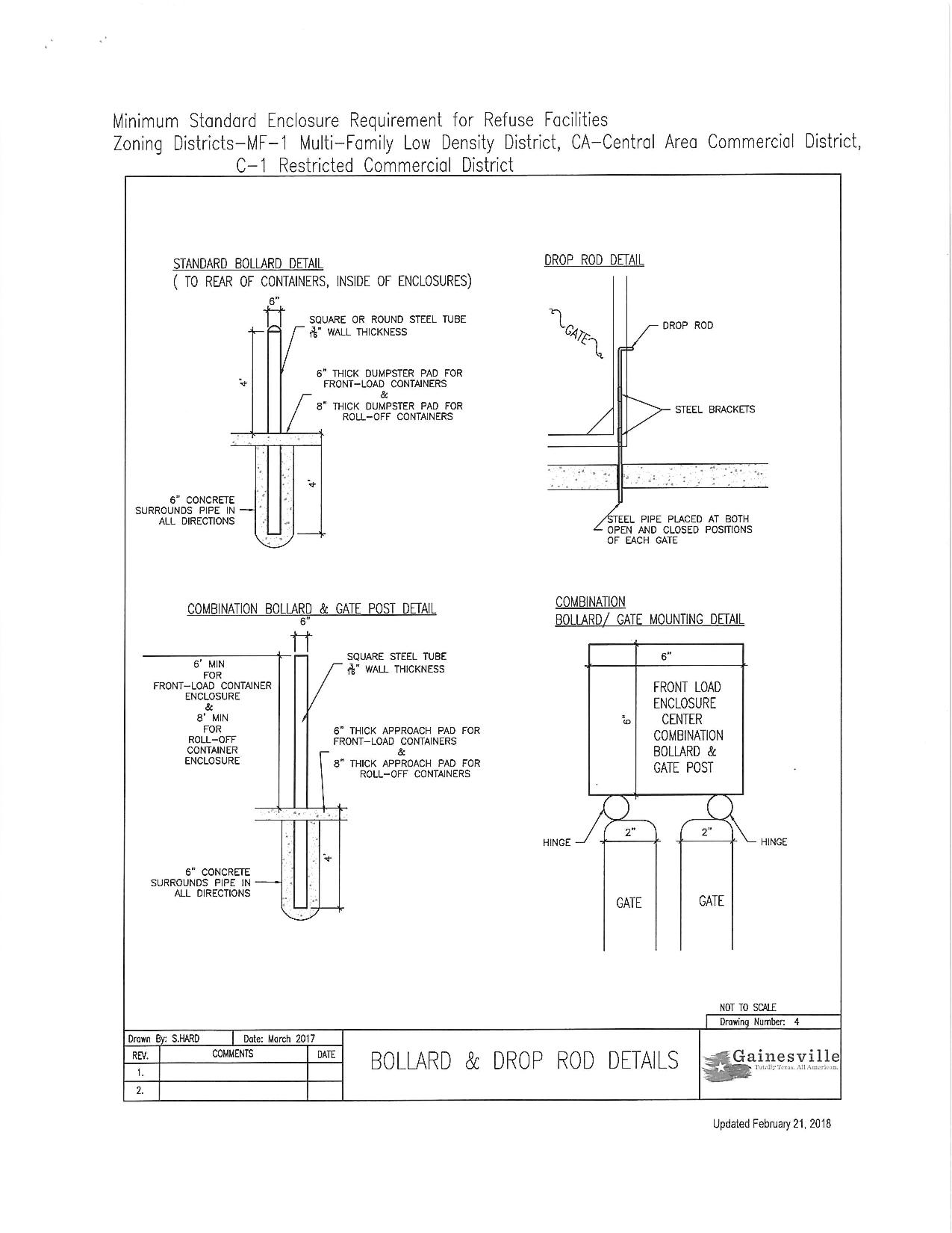
Construction and maintenance of enclosures or screening is the customer’s responsibility. Enclosures must be built to the Solid Waste Site Plan. All small containers must have an enclosure with gates.

Dumpster enclosure with gates-page-001.jpg
Rolloff enclosure with gates-page-001.jpg
Bollard Information-page-001.jpg

Service Guidelines

Containers must be accessible at all times. All accepted items must fit inside container below the top or with the lid closed.

Service Level Adjustments - To adjust container sizes and/or frequency of collection, call the General Services Department, Solid Waste Division, at (940) 668-4551.

Extra Empties - Available for regularly scheduled containers; fee will apply based on container size. Container sizes 4 yds., 6yds., 8 yds. and temporary roll-off containers.

Roll-Off Container Uses & Rental Tips

When would you use a roll-off container?
Typically, a roll-off container would be used for waste from building construction, such as rocks, brick, broken concrete, lumber, building materials, or other trash resulting from construction or major remodeling or resulting from general cleanup of vacant or improved property.

Suggested roll-off uses:
Residential
(recommended 20 yard roll-off)

  • Home remodeling projects
  • Neighborhood cleanup
  • Large landscaping jobs
  • Move in/move out
  • Spring cleaning
  • Residential demolition

Roll-Off Container Rental Tips:

  • A City of Gainesville Refuse Account Service Agreement form must be completed along with the first first pull charge and a one time delivery fee prior to delivery of the temporary container.
  • The entire deposit will be applied to the customer’s account after the account has been closed.
  • Roll-off trucks must have 50 feet of straight clear access to approach and engage the container.
  • All container sites must have minimum height clearance of 25 feet.
  • It is the customer’s responsibility to provide an accessible location for the container.
  • Customers will assume responsibility for damage to or loss of the rented container(s).

Types of Containers – Roll-Off Containers

20 yd. Roll-Off Container

006.JPG

30 yd. Roll-Off Container

007.JPG

40 yd. Roll-Off Container

008.JPG

Same Day Service – Roll-off containers are available on a demand response (call-in) basis. Containers are usually serviced within 24 hours of the initial call. Same day service is available for any roll-off container called in before 11 AM, and all calls after 11 AM will carry over to the next business day. To avoid any delays in service for your roll-off containers, please call General Services Department, Solid Waste Division one day prior to schedule the collection.

Customer Responsibility – The customer is responsible for all loss and damage to City equipment, other than normal wear and tear or the resulting from City of Gainesville’s handling of the equipment when providing service. Equipment that has been loaded beyond its normal capacity will become the responsibility of the customer and as such will not be serviced. A trip fee of $68.09 may be charged for overloaded containers. The customer is responsible for ensuring the container is not blocked. If containers are blocked on a regular basis, a trip fee may be charged to the customer.

Container Approaches and Pads – Concrete pads for the container and truck approach protects your property from the weight of the equipment.

Gates – Installed gates are required to have stops that secure the gate in the open position.

Weight Restrictions

· Front load dumpsters shall not exceed a total weight of 4,000 pounds (2 tons).

· Roll-off containers shall not exceed 9 tons. Should the container weight more than 9 tons an overweight fee will be added to the invoice at $70.15 per ton. Department of Transportation tickets and/or fines for overweight roll-off containers are the responsibility of customer, and will be added to the customer’s bill.

· Overloaded containers or containers to heavy to lift will not be emptied, and a portion of the contents must be removed from the container by the customer prior to being emptied or hauled.

Prohibited Items

· All liquids. Paint must be completely dry before placing in container, paint cans or buckets must be open and visible for the driver to inspect before removing the container from the business or job site.

· Items that contain hazardous, bio-hazardous, and radioactive materials.

2024-2025 Solid Waste Rates

IMPORTANT: The City shall be the exclusive provider of residential waste and commercial waste, rubbish, and refuse collection and disposal service for all residential premises and commercial premises and establishments within the city limits.

*Rates are subject to change annually*

For more information on any of the comments mentioned above you may contact the General Services Department, Solid Waste Division at (940) 668-4551.